Versie: Dit hoofdstuk wordt momenteel bewerkt. Paragrafen 1.1 t/m 1.4.3 zijn vernieuwd.
Versie oktober 2025
Een bekisting, opgebouwd uit verschillende onderdelen en eventueel ondersteund door een ondersteuningsconstructie, is nodig om een betonconstructie in de juist de vorm te storten. Bekistingen bestaan er in uiteenlopende typen en verschijningsvormen. Ze zijn opgebouwd uit verschillende onderdelen en voor elk van die onderdelen kunnen verschillende materialen worden toegepast, zoals hout, staal, aluminium of kunststof. Welke bekisting moet worden toegepast en hoe die moet worden opgebouwd, hangt uiteraard af van welke constructie je ermee wil realiseren. Het storten van een poer vraagt bijvoorbeeld een heel andere bekisting dan het storten van een wand of vloer. Er spelen veel andere criteria een rol: vorm, kwaliteit (zowel van de bekisting zelf als van de te realiseren constructie), bouwsnelheid, repetitie, kosten, beheersbaarheid, veiligheid, oppervlakte-eisen. Hoewel bekistingen een tijdelijk hulpmiddel zijn, moet er veel aandacht worden besteed aan de samenstelling ervan, of dat nu in de fabriek of op de bouwplaats gebeurt. In de volgende hoofdstukken wordt ingegaan op de samenstelling van een bekisting, op de keuzecriteria, de randvoorwaarden, de verschillende typen en materialen en op een aantal kenmerkende onderdelen. Omdat veiligheid zo’n belangrijk aspect is, wordt daar in een apart hoofdstuk extra aandacht aan besteed.
Versie: oktober 2025
Een bekisting bestaat uit verschillende onderdelen die met verschillende materialen en op verschillende manieren kan worden samengesteld. In dit hoofdstuk worden deze onderdelen globaal toegelicht. In hoofdstuk 1.4 wordt meer in detail ingegaan op de bekistingen voor verschillende bouwdelen.
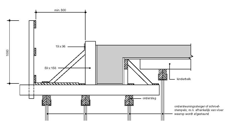
In figuur 1.2.1, 1.2.2 en 1.2.3 staan schematische voorbeelden van een verticale bekisting (wandbekisting) en een horizontale bekisting (vloerbekisting) met ondersteuningsconstructie, inclusief de verschillende onderdelen. Deze onderdelen worden hieronder nader toegelicht.
1.2.1 Schematische weergave traditionele bekisting, inclusief onderdelen


1.2.3 Schematische weergave horizontale bekisting met ondersteuningsconstructie
Bekistingsconstructie
Met de bekistingsconstructie wordt het geheel bedoeld van de contactbekisting en de constructie waarop die contactbekisting is bevestigd. De constructie bestaat uit staanders, dragers, gordingen, kinderbinten en/of onderslagen (benaming afhankelijk van verticale of horizontale bekisting, zie verderop), die de belasting die de betonspecie op de contactbekisting uitoefent, afdragen aan de ondersteunings- of centerpenconstructie.
Ondersteuningsconstructie
Met de ondersteuningsconstructie wordt de constructie bedoeld die de verticale belasting van een horizontale bekisting afdraagt naar de ondergrond. Meer hierover in hoofdstuk 2 ‘Ondersteuningsconstructie’.
Contactbekisting
Met contactbekisting wordt de beplating bedoeld die in direct contact komt met de betonspecie. De contactbekisting kan bestaan uit verschillende materialen. Meer hierover bij de toelichting op de verschillende typen bekisting in hoofdstuk 1.4.
Voor contactbekisting worden ook wel termen contactbekistingsplaat, bekistingsplaat, huidplaat of betonplex gebruikt. In dit handboek houden we de term contactbekisting aan.
Drager
Een drager is een onderdeel van de bekistingsconstructie waarmee de belasting die de betonspecie uitoefent op de contactbekisting, wordt afgedragen.
In een verticale wandbekisting en wordt deze ook wel staander genoemd en in een horizontale bekisting ook wel kinderbint.
De drager kan een houten badding (ca. 59 × 156 mm2), een houten of aluminium systeemdrager of stalen ligger zijn.
Gording
Een gording is een is een onderdeel van een verticale bekistingsconstructie waarmee de belasting uit de drager / staander wordt afgedragen, meestal aan de centerpenconstructie. Hij is opgebouwd uit een of twee houten baddingen (ca. 59 x 156 mm2), houten of aluminium systeemdragers of stalen liggers.
Kinderbint
De kinderbint is een onderdeel van een horizontale bekistingsconstructie waarmee de belasting vanuit de contactbekisting wordt overgebracht op de onderslag. Hij wordt ook wel drager genoemd.
Het kan een houten badding zijn (ca. 59 × 156 mm2), een houten of aluminium systeemdrager of stalen ligger zijn. Een kinderbint wordt ook wel kinderbalk of drager genoemd.
Onderslag
De onderslag is een onderdeel van een horizontale bekistingsconstructie waarmee de verticale belasting uit de kinderbinten / dragers wordt afgedragen naar de ondersteuningsconstructie.
Een onderslag kan een houten badding (ca. 59 × 156 mm2), een houten of aluminium systeemdrager of stalen ligger zijn. Er kan worden gekozen om meerdere onderslagen direct naast elkaar toe te passen.
Centerpenconstructie
De centerpenconstructie is de constructie van verbindingsmiddelen die de horizontale belasting uit de betonspecie (bekistingsdruk) afdraagt naar een andere bekistingsconstructie of naar een vast object.
Meer hierover in hoofdstuk 1.7 ‘Centerpenconstructies’.
Bekistingsklem
Een bekistingsklem is een klem die wordt gebruikt om de panelen bij paneelbekistingen onderling met elkaar te verbinden. Deze klem kan ook worden gebruikt om andere onderdelen aan het paneel te klemmen, zoals een houten balk of plank.
Bordes
Een bordes (of stortsteiger) is aanwezig aan de zijkant van de bekisting om toegang te verlenen tot de bekisting. Dit kan zijn voor het werk aan de centerpennen, het betonstorten of voor inspectie van de bekisting. Het bordes is opgebouwd uit consoles, een loopvlak en een leuning. De toegang tot een bordes wordt gerealiseerd met een trapopgang.
Leuning
Een leuning is een veiligheidsafscheiding om horizontale veiligheid te bieden, voor, tijdens en na de betonstort. De leuning is aanwezig op en aan de bekisting/ondersteuning.
Schoor
Een schoor is een voorziening waarmee een verticale de bekisting kan worden gesteld. Hij is verankerd aan ondergrond of een andere constructie. De externe horizontale belastingen op de bekistingen, zoals wind, worden door de schoren afgedragen naar de ondergrond.
Verankering
Met de verankering worden schoren (momentgecontroleerd) gekoppeld aan de ondergrond.
Moerbalk
Bij zwaardere ondersteuningen met grotere overspanningen van de onderslagen, worden de onderslagen soms opgelegd op moerbalken (niet zichtbaar in fig. 1.2.3, wordt nader toegelicht in hoofdstuk 2 over ondersteuningsconstructies).
Stelkist
Een verticale bekisting is uit twee zijden opgebouwd. De zijde die als eerste wordt geplaatst, wordt de stelkist genoemd. Deze bekisting wordt in de juiste positie gesteld, zodat de gewenste betonvorm kan worden gerealiseerd. De stelkist is voorzien van schoren om de bekisting te kunnen stellen.
Sluitkist
Nadat de wapening is geplaatst in een verticale bekisting, kan de bekisting worden gesloten. Dit gebeurt met de tweede zijde, de zogenoemde sluitkist. Na plaatsing wordt de sluitkist meestal gekoppeld met centerpennen aan de stelkist.
Voor de onderdelen van een bekisting kunnen verschillende materialen worden toegepast. Denk aan hout, staal, aluminium of kunststof. Deze materialen hebben allemaal verschillende eigenschappen, onder meer ten aanzien van gewicht, stijfheid, sterkte, slijtvastheid, bewerkbaarheid en kosten. Welk materiaal in welke situatie het beste kan worden toegepast, wordt beschreven in hoofdstuk 1.3 ‘Eisen en keuzecriteria’. Meer over de materialen die worden toegepast bij de verschillende typen bekisting staat in hoofdstuk 1.4 ‘Typen bekistingen’.
Traditionele bekisting
Een traditionele bekisting is een bekisting die in het werk wordt opgebouwd en waarbij standaardmateriaal wordt gebruikt dat voor allerlei activiteiten op de bouwplaats voorhanden is (fig. 1.2.4). Soms worden van deze materialen samengestelde schotten gemaakt, die meerdere keren zijn in te zetten.

Paneelbekisting
Een paneelbekisting (ook wel systeembekisting genoemd) is samengesteld uit een combinatie van verschillende standaard elementen (fig. 1.2.5). De afmetingen van die elementen kunnen uiteenlopen: van kleine panelen, die met de hand zijn te verwerken (handzame panelen), tot grote elementen die met de kraan moeten worden verwerkt. In dat laatste geval wordt ook wel van een grootpaneelbekisting gesproken. In dit handboek houden we de term paneelbekisting aan.



Constructief/algemeen
Veiligheid/arbo
1.3.1 Voorbeelden van voorzieningen voor veiligheid/arbo (schoring, ladderopgang, centering en combinatie met eindgevelsteiger
Naast de eisen, spelen veel uiteenlopende criteria een rol bij de keuze voor de juiste bekisting. Deze criteria worden hieronder toegelicht, in willekeurige volgorde.
Geometrie en dimensie
De gewenste betonvorm speelt een belangrijke rol bij de keuze van de juiste bekisting.
Voor vlakke of rechtvormige betonconstructies zijn de keuzes en mogelijkheden divers en zijn aanvullende criteria maatgevend om tot een juiste keuze te komen. Hierbij geldt:
Bij organisch gevormde, gekromde, ovale of elipsvormige constructies moet rekening worden gehouden met :
Als er sprake is van schuinstand zijn aanvullende maatregelen belangrijk, bijvoorbeeld :
Ook de hoogte van een betonconstructie is een belangrijk criterium.
Voor een lage storthoogte, bijvoorbeeld bij funderingen, zijn de aandachtspunten vooral gericht op repetitie, inzet, looptijd, kraanafhankelijkheid of handzame uitvoering.
Bij hogere betonconstructies is van belang extra rekening te houden met :
1.3.2 Verschillende bekistingen voor verschillende betonvormen
Esthetiek / afwerking
Belangrijk bij de keuze van de bekisting is de gewenste oppervlakteklasse waaraan de betonconstructie moet voldoen. Hiervoor moeten NEN-EN 13670 en NEN 8670 worden geraadpleegd, waarbij onderscheid wordt gemaakt in de diverse klassen, zoals genoemd in CUR Aanbeveling 100 – Schoonbeton (fig. 1.3.3).

1.3.3 Relatie tussen normatieve documenten met criteria voor het betonoppervlak met positie van de oppervlakteklassen B1, B2 en B9 voor schoonbeton (bron: CROW-CUR Aanbeveling 100)
De eisen ten aanzien van het oppervlak hebben op verschillende manieren invloed op de keuze voor de bekisting:

1.3.4 Voorbeelden van verschillende oppervlaktestructuren van beton met projectspecifieke eisen

1.3.5 Aftekening paneelbekisting (links) en aftekening schroeven in contactbekisting van de panelen (rechts)

1.3.6 Aftekening paneelbekisting (links) en aftekening schroeven in contactbekisting van de panelen (rechts)
Repetitie, inzet, looptijd, economisch
Als er sprake is van een grote repeterende inzet, is het van belang om een degelijke constructie en contactbekistingsplaat toe te passen. Bij een grote repetitie kunnen slimme projectspecifieke oplossingen worden bedacht, waarbij hogere eenmalige kosten moeten worden afgewogen tegen:
Inzet van de bekisting is mede afhankelijk van:
Bij een langere doorlooptijd kan het omslagpunt worden bepaald voor een keuze tussen een projectmatige kist of een (standaard) huurkist.
Afweging
Als alle genoemde criteria zijn beoordeeld, volgt hieruit een economische afweging. Hierbij kan alleen een goed (kosten)vergelijk worden gemaakt als naast de kosten voor de inzet van de bekisting ook de besparing met betrekking tot arbeid (manuren), (voor)montage aantal en type centerpennen, transport, kraan en/of tijd/planning wordt meegenomen.
Organisatorisch, gebruik
Naast de genoemde criteria gelden nog enkele aandachtspunten vanuit organisatorisch oogpunt:
Er moet daarnaast rekening worden gehouden met hoe en waarvoor de bekisting wordt toegepast:

1.3.7 Er moet rekening worden gehouden met hoe en waarvoor de bekisting wordt toegepast
Duurzaamheid
Ook op het gebied van duurzaamheid kunnen er aandachtspunten een rol spelen bij de keuze voor de bekisting. Denk daarbij aan:
Voorgaande criteria zijn vooral toegespitst op verticale bekisting. Bij horizontale bekistingen zijn er aanvullende eisen en/of criteria van belang. Denk aan:
Versie: oktober 2025
In dit hoofdstuk worden veel voorkomende typen bekistingen nader toegelicht, achtereenvolgens poerbekisting, funderingsbalkbekisting, kolombekisting, wandbekisting, balkbekisting en vloerbekisting.Een poer is een betonnen ondersteuning, bedoeld om de verticale afdracht van belastingen uit een constructie over te dragen naar de ondergrond (fundering op staal) of op de paalfundering.
Poeren worden in verschillende vormen en afmetingen uitgevoerd.
De bekisting voor een poer (of serie poeren) wordt niet alleen bepaald door de vorm van de poer, maar vooral ook door de uitvoeringsmethode van bijvoorbeeld de betonvloer die erop wordt aangebracht en de wapening voor de aansluitende balken.
Traditionele bekisting en lichte systemen
Worden slechts enkele poeren gemaakt, dan worden vaak traditionele poerbekistingen toegepast (fig. 1.4.1) of lichte (verloren) systemen, waarvan verschillende typen in de markt verkrijgbaar zijn. Ronde poeren kunnen ook met polystyreen (PS) worden bekist, dat licht en handzaam is (fig. 1.4.2). Hierbij moet een afweging worden gemaakt tussen kosten, duurzaamheid en besparing op arbeid.

1.4.1 Traditionele poerbekisting

1.4.2 Voorbeeld van een ronde PS-bekisting voor een poer
Paneelbekisting
Afhankelijk van de seriematigheid wordt voor poeren vaak gekozen voor een paneelbekisting (fig. 1.4.3). Daarbij kan weer worden gekozen voor handzame panelen of zwaardere elementen die met de kraan moeten worden omgezet.

1.4.3 Voorbeeld van een paneelbekisting ten behoeve van een kraanpoer
Projectbekisting
Bij grote repetitie kan met projectmatige poerbekistingen worden gewerkt. Hierbij moet een afweging worden gemaakt tussen hogere huur- en/of eenmalige kosten enerzijds en besparing op arbeid anderzijds.
Het kan gaan om een speciaal gemaakte stalen bekisting (fig. 1.4.4). Ze kunnen ook bestaan uit houten schotten, die zijn voorzien zijn van gordingen (fig. 1.4.5).
Bij de detaillering valt te overwegen de betonvorm taps uit te voeren. De bekisting hoeft dan niet te worden losgenomen, maar kan compleet, zonder loshalen en in een hijsbeweging, worden verplaatst.

1.4.4 Voorbeeld van stalen poerbekisting (met stelframe)

1.4.5 Voorbeeld van een projectmatige poerbekisting
Veiligheid
Bij poerbekistingen moet, net als bij andere bekistingen, rekening worden gehouden met veiligheid. Met name bij lage poerkisten is er een risico op struikel- of valgevaar. Hoge poerkisten worden vaak voorzien van leuningwerk. De algemeen geldende veiligheidsvoorschriften moeten in acht worden genomen.
Een funderingsbalk is dat deel van een gebouw of constructie dat ervoor zorgt dat de belasting wordt overgedragen op de ondergrond of paalconstructie.
Maatvoering is essentieel, net als het goed kunnen stellen van de bekisting. Daarvoor is een draagkrachtige ondergrond nodig, bijvoorbeeld een werkvloer.
Het maken van funderingsbalken kan erg arbeidsintensief zijn, zeker als vanuit de grondslag nog geen vaste maatvoering valt te realiseren. Ook grondwater kan een probleem zijn en bekisting en wapening kan elkaar in de weg zitten.
Verloren en lichte systemen
In de woningbouw wordt de bekisting van funderingsbalken vaak uitgevoerd in polystyreen (PS), dat later als isolatiemateriaal voor de woning fungeert (en dus als ‘verloren bekisting’ kan worden beschouwd) (fig. 1.4.6). Er zijn verschillende andere type lichte systemen in de markt verkrijgbaar. Bij dit type bekisting is geen kraan nodig, dankzij het lage gewicht van de elementen.

1.4.6 Voorbeeld van een verloren balkbekisting met PS
Traditionele bekisting
Indien een balkbekisting beperkt wordt ingezet, wordt vaak gekozen voor een traditionele manier van bekisten met houten bekistingsschotten. Voordeel is dat deze zijschotten handzaam zijn; er is dus geen kraan nodig. Uitvoering van een traditionele balkbekisting kan op verschillende manieren. Soms worden van deze materialen samengestelde schotten gemaakt, die meerdere keren zijn in te zetten.
Traditioneel worden de zijschotten gekoppeld met houten latten (fig. 1.4.7). Alternatief is een koppeling met stalen balkklemmen, die over de schotten worden geplaatst (fig. 1.4.8). Deze balkklemmen zijn verstelbaar in de breedte en zijn geschikt voor balken tot circa 800 mm hoogte. Nadeel van balkklemmen is dat er veel verschillende uitvoeringen bestaan met verschillende sterktes. Er zijn er bovendien relatief veel van nodig en het eigen gewicht is hoog.

1.4.7 Voorbeeld van een traditionele funderingsbalkbekisting

1.4.8 Funderingsbalkbekisting met stalen klemmen
Paneelbekisting
Als repetitie mogelijk is, wordt het interessant om andere bekistingskeuzen te overwegen. Vanuit economisch oogpunt en bouwsnelheid kan de keuze gemaakt worden voor een paneelkist (handzaam of kraangebonden) (fig. 1.4.9).

1.4.9 3D-weergave paneelbekisting voor funderingsbalk
Projectbekisting
Bij een grote mate van repetitie of langdurige inzet kan het interessant zijn om een projectspecifieke balkbekisting in te zetten, waarbij een verlaging van de arbeidsnormering mogelijk is.
Een voorbeeld is een klapkist, met een stalen beugel (fig. 1.4.10). Deze wordt in uitgeklapte stand over de voorgevlochten wapeningskorf geplaatst.
Een ander voorbeeld is een stalen systeem waarbij in de bovenregel verstelmogelijkheden zijn ingebouwd om het ontkisten te vereenvoudigen (fig. 1.4.11).
Deze projectmatige bekistingstypen zijn vaak kraanafhankelijk (alternatief is een zelfrijdende bekisting). Het grote voordeel zit hem met name in de lage arbeidsnorm in combinatie met een korte doorlooptijd.

1.4.10 Principe werking (houten) klapkist (met stalen beugel)

1.4.11 Verstelbare stalen (klap)bekisting bijvoorbeeld voor funderingsbalken
Veiligheid
Ook bij fundatiebalkbekisting moet rekening worden gehouden met veiligheid. Met name bij lage balkbekistingen bestaat er een risico op struikel- of valgevaar. Dat risico is groter dan bij hoge balkbekistingen, die beter zichtbaar zijn. De algemeen geldende veiligheidsvoorschriften moeten in acht worden genomen.
Een betonnen balk of ligger is een constructie-element waarvan de lengte vele malen groter is dan de breedte en hoogte. Betonnen balken die ter plaatse worden gestort, hebben doorgaans een rechthoekige doorsnede.
Voor de bekisting van balken worden in het algemeen twee situaties onderscheiden. In de eerste situatie is de balk onderdeel van de vloer en vormen de balk- en vloerbekisting één geheel (gecombineerde bekisting) (fig. 1.4.12). De balk en vloer worden dan gelijktijdig gestort.
In de tweede situatie wordt de balkconstructie voorafgaand aan de vloer gestort, waarna vloer in prefab of in het werk gestort wordt aangebracht. Voor de balk wordt daarbij een aparte bekisting gebruikt (fig. 1.4.13).
Een balkbekisting kan bestaan uit onderslagen, kinderbinten en een verticale en horizontale contactbekisting. De ondersteuningsconstructie vormt bij balkbekistingen een integraal onderdeel van de gehele bekistingsconstructie en wordt daarom in dit hoofdstuk meegenomen.
Voor balken zijn ook oplossingen met combinaties met prefab vloersystemen. Daarop wordt in dit hoofdstuk niet ingegaan.

1.4.12 Balkbekisting gecombineerd met een vloerbekisting

1.4.13 Balkbekisting (paneelbekisting)
Kenmerken en aandachtspunten
Voor een balkbekisting gelden enkele aandachtpunten.

1.4.14 Balkbekisting ondersteund door een systeemtoren

1.4.15 Balkbekisting met werkruimte rondom de bekisting
Traditioneel
Balkbekistingen kunnen op een traditionele manier worden uitgevoerd, met standaard materiaal. Soms worden van deze materialen samengestelde schotten gemaakt, die meerdere keren zijn in te zetten.. Uitvoering van een traditionele balkbekisting kan op verschillende manieren. Extra aandacht is nodig bij toepassing van een randbekisting waarop een vloer constructief is opgelegd in verband met extra belastingen in meerdere richtingen.
Paneelbekisting
Om de hoeveelheid arbeid bij het monteren van een balkbekisting te beperken kan een paneelbekisting worden ingezet, die is samengesteld uit een combinatie van verschillende standaard elementen (fig. 1.4.13).
Het opnemen van de betonspeciedruk kan op verschillende manieren: traditioneel, met jukken (fig. 1.4.16), balkklemmen onder en boven de balkbekisting (fig. 1.4.17) of met centerpennen (fig. 1.4.18).
Worden voor de vloer ook paneelbekistingen toegepast, dan vormt de balkbekisting een integraal onderdeel van de vloerbekisting.

1.4.16 Voorbeelden van jukken voor de opname van betonspeciedruk

1.4.17 Balkklem, inclusief afstandhouder

1.4.18 Balkbekisting met centering bovenlangs
Stalen bekisting en projectbekistingen
Bij grote repetitie of langdurige inzet wordt sporadisch gebruikgemaakt van stalen bekistingen of een speciaal voor het project vervaardigde projectbekisting. In de woning- en utiliteitsbouw komt dat doorgaans niet voor.
Randbalkbekisting
Als de vloer en de balk tegelijk worden gestort, kan aan het uiteinde van de vloer een randbalkbekisting worden gebruikt. De buitenbekisting van de randbalk vormt tevens de beëindiging van het vloerveld. De binnenbekisting van de randbalk is hierbij ook een onderdeel van de vloerbekisting (fig. 1.4.19). Een (verzwaarde) randkist kan ook dienen als oplegpunt voor de breedplaat/vloerbekisting.
De horizontale betonspeciedruk wordt via de randbalkbekisting opgenomen door de vloerbekisting. De buitenbekisting kan als enkelzijdige bekisting fungeren, waarbij aandacht voor afschoren nodig is.

1.4.19 Randbalkbekisting met binnen en buitenkist
Ondersteuning
Belangrijk uitgangspunt bij de ondersteuning van een randbalkbekisting is dat deze zodanig wordt ontworpen en gemonteerd dat een veilige situatie ontstaat met voldoende werkruimte. Voor de ondersteuningsconstructie moet aandacht worden besteed aan de manier van het wegnemen van de bekisting (ontkisten), zonder dat de ondersteuningsconstructie moet worden verwijderd. Dit omdat op het moment van ontkisten de sterkte van het beton vaak nog onvoldoende is.
Als ondersteuning van een balkbekisting zijn vele systemen mogelijk. De voorkeur hebben systemen die in twee richtingen stabiliteit bieden. Daarom worden meestal ondersteuningssteigers in combinatie met een console toegepast (fig. 1.4.20, links). De ondersteuningssteiger wordt vaak via trekschoren tegen domp beveiligd. Een alternatief is een ondersteuningssteiger die op uitkragende balken vanaf de onderliggende vloer wordt geplaatst (fig. 1.4.20, rechts).

1.4.20 Ondersteuningssteiger bij een randbalk (met console en trekschoor) (links). Alternatief is een ondersteuning op een uitkragende balk vanaf de onderliggende vloer (rechts)
Veiligheid
Natuurlijk moet ook bij balkbekistingen rekening worden gehouden met veiligheid. Zo moet het risico op vallen worden vermeden, bijvoorbeeld door het aanbrengen van leuningen en voldoende werkruimte (fig. 1.4.15). Dit geldt helemaal als er wordt gewerkt op hoogte en aan de buitenkant van een bouwwerk.
De algemeen geldende veiligheidsvoorschriften moeten in acht worden genomen. Ook de Richtlijn Bekistingen en Ondersteuningen biedt nuttige informatie.
Versie: 2015
Algemeen
In de bouw komt het weinig voor dat op een werk slechts één of enkele kolommen moeten worden gemaakt, de civiele bouw uitgezonderd. Bijna altijd is er een relatief groot aantal kolommen te maken en wordt dus voor de bekisting naar een zo groot mogelijke repetitie gezocht. Hierbij moet worden voorkomen dat de productie van kolommen in de kritische lijn van de planning terechtkomt.
Van invloed is niet alleen de kolomafmeting in breedte en dikte, maar ook de hoogte van de kolom. Doordat de begane grond vaak een afwijkende verdiepingshoogte heeft, zijn de minimale en maximale hoogten van de bekisting vastgelegd.
Het kan leiden tot de behoefte aan een in de hoogte aanpasbare kolombekisting. De begane-grondvloer vereist een bekisting die voldoende stijfheid heeft om zonder torderen, binnen de aangegeven toleranties te blijven. De verdieping onder de dakvloer laat in verband met de wapening van de kolommen vaak geen hogere bekisting toe dan enkele centimeters boven de onderzijde van de vloer.
Resumerend wordt de keuze van het type kolombekisting bepaald door de volgende factoren:
Om een efficiënte uitvoeringsmethode te kunnen realiseren, worden kolommen voorgestort en dus niet gelijktijdig met de balken of vloeren bekist en meegestort. Mits voldoende verhard, kunnen ze als stabiliteitsvoorziening van de vloerbekisting worden gebruikt. Het betekent wel dat de maatvoering goed controleerbaar moet zijn.
Door het voorstorten ontstaat een situatie die om veiligheidsvoorzieningen tijdens het storten vraagt. Werksteigers kunnen een onlosmakelijk deel van de kolombekisting uitmaken, los bij de kolom worden geplaatst of verrijdbaar worden uitgevoerd.
1.5.10 Veiligheidsvoorziening kolomstortsteiger
Een betontechnisch aspect is nog dat het beton nazakt bij de relatief hoge kolommen. Het leidt ertoe dat kolommen altijd enigszins hoger worden afgestort dan theoretisch aangegeven. De bekisting moet op deze hoogte zijn aangepast. Worden kolommen en balken toch gelijktijdig gestort, dan moet men voorkomen dat er scheurvorming optreedt tussen kolom en balk.
Verticaal stellen van een kolombekisting gebeurt met trek-drukschoorstempels, die op de vloer worden verankerd (meestal twee per kolom) of met kettingen die aan drie zijden aan de bekisting zijn bevestigd. De horizontale maatvoering wordt gefixeerd door gebruik te maken van stelkransen die op de betonvloer worden vastgeschoten.
Traditionele houten kolombekisting
Dit is de meest eenvoudige vorm van een kolombekisting en kan met de hand omgezet worden (figuur 1.5.11). De bekisting bestaat uit vier houten schotten, molenwiekend uitgevoerd. Lichte kolomkransen zorgen voor opname van de betonspeciedruk. Het gatenpatroon in de kransen zorgt voor een traploze verstelbaarheid.
1.5.11 Traditionele kolombekisting
Projectgebonden houten kolombekisting Vanuit het oogpunt van efficiency hebben vormvaste kraanelementen voordelen ten opzichte van de bekistingen die met de hand worden omgezet. Afhankelijk van de vorm van de kolommen, kan de bekisting bestaan uit twee op maat gemaakte hoekstukken, twee rechte schotten met kopschotten, of uit ‘standaard’ hoeken die met vulkisten tot de juiste kolomafmetingen komen (figuur 1.5.12). Een dergelijke bekisting kan met achterliggende staanders eenvoudig worden verlengd en voor een dakverdieping desnoods worden ingekort.
De keuze van de opbouw van een houten kolombekisting wordt beïnvloed door de kolomafmetingen, de repetitiefactor en de betonspeciedruk. Een projectbekisting kan op allerlei manieren zodanig worden versterkt dat aan alle constructieve eisen wordt voldaan. Dit in tegenstelling tot een kolombekisting uit systeempanelen, waar de plaats van de centerpennen door het systeem is vastgelegd; daarmee staat ook de maximaal toelaatbare betonspeciedruk met bijbehorende vervorming vast.
Ook voor ronde kolommen en kolommen met afwijkende doorsneden zijn bekistingsoplossingen bekend. In figuur 1.5.13 zijn enkele uitvoeringen in hout, in combinatie met een berken triplex bekleding, aangegeven.
1.5.12a Twee kolomdoorsneden
1.5.12b Twee kolomdoorsneden
1.5.13a Doorsnede ronde kolom en rechthoekige kolom met ronde kopzijden (illustratie)
1.5.13b Doorsnede ronde kolom en rechthoekige kolom met ronde kopzijden (foto)
Stalen kolombekisting
Door de vaak grote repetitie en dus de noodzaak het aantal handelingen zoveel mogelijk te beperken, worden veel kolombekistingen volledig in staal uitgevoerd. Hierbij is het onderscheid tussen utiliteits- en civiele bouw weer duidelijk. Waar in de utiliteitsbouw sprake is van standaard-kolombekistingen, zijn deze in de civiele bouw zonder uitzondering als mal te beschouwen en daarmee een projectbekisting.
Vierkante en rechthoekige kolommen worden in de meeste gevallen in twee hoeken uitgevoerd, die overhoeks worden verbonden. De staalplaat van 4 tot 5 mm en de ondersteuning uit staalprofielen zijn als een constructieve eenheid te beschouwen die de betonspeciedruk opneemt.
Ronde stalen kolombekistingen zijn eveneens uit twee helften samengesteld. Speciale aandacht vraagt de sluitnaad, want juist op een ronde kolom wordt elke schotwisseling goed zichtbaar. Hiervoor gebruikt men spie- of pasbouten. Het afschoren gebeurt met twee trek- en drukvaste schoorstempels of met kettingen.
Enkele leveranciers van kolombekisting leveren een systeembekisting. Deze bestaan uit vier rechte schotten die zijn voorzien van een regelmatig gatenpatroon, waarmee in een moduul van enkele centimeters rechthoekige en vierkante kolommen kunnen worden gemaakt door ze molenwiekend met elkaar te verbinden. De maximaal mogelijke afmetingen worden door de leverancier opgegeven.
1.5.14 Opbouw kolombekisting uit panelen
In de civiele bouw worden stalen kolombekistingen gebruikt voor kolommen c.q. pijlers, als de vorm complex is of behoorlijke repetitie mogelijk is. Werksteigers en de afschoring zijn vaak in dezelfde voorziening opgenomen. De bevestiging aan de ondergrond moet per situatie worden bepaald.
1.5.15a Voorbeeld van een stalen pijlerbekisting
1.5.15b Voorbeeld van een stalen pijlerbekisting
Systeemkolombekisting
Naast de hiervoor genoemde stalen kolombekisting voor vierkante en rechthoekige kolommen hebben verschillende leveranciers hun paneelbekisting geschikt gemaakt voor kolombekisting.
De rechte panelen worden molenwiekend tegen elkaar geplaatst en door middel van voorgeboorde gaten met elkaar verbonden (zoals ook bij de stalen systeemkolombekisting). De houten beplating maakt het mogelijk in te storten voorzieningen te bevestigen. Gebruikte gaten kunnen aan het eind van het project met kunststof doppen worden afgesloten.
Stortsteigers worden ofwel in de vorm van losse torens bij de kolommen gezet, ofwel met behulp van systeemconsoles aan de bekisting gehangen.
Ronde kolombekisting
De ronde kolombekistingen vormen een aparte groep. Er wordt onderscheid gemaakt in repeterende en verloren bekistingen. Ze kunnen bestaan uit spiraalvormig metaal, karton, kunststof, aluminium en natuurlijk zoals al eerder genoemd, uit staal. De ontwikkelingen in de kunststofindustrie hebben geleid tot bijzondere toepassingen in de bekistingswereld.
Alle systemen gaan uit van het gegeven dat de betonspeciedruk wordt opgenomen door de wand van de bekisting en dat de bekisting door het hydrostatische principe een zuiver ronde vorm krijgt.
Bij repeterende kolombekisting wordt veel aandacht besteed aan een snelle koppeling en een minimum aan stelnoodzaak. De stalen en kunststof bekistingen zijn als mal uitgevoerd en slechts voor één diameter geschikt.
1.5.16 Voorbeeld van een ronde kolombekisting
Verloren ronde kolombekisting is in vele uitvoeringen en materialen beschikbaar. Vroeger was de metalen spiraalbekisting populair. Na het storten werd deze als een conservenblik van de kolom gepeld. De structuur van de spiraal bleef achter in het betonoppervlak.
Kartonbekisting gaat van hetzelfde principe uit en afhankelijk van het gekozen systeem en de lining is de structuur niet, dan wel in meer of mindere mate zichtbaar. Kunststof en polyester bekistingen bestaan in verschillende vormen: van de meest eenvoudige oplossing, namelijk een pvc-pijp die na het storten wordt opengesneden en afgepeld, tot mallen die op dezelfde wijze als ronde stalen kolombekistingen worden behandeld.
1.5.17 Verloren kolombekistingen
Bij alle ronde kolombekistingen moet veel aandacht worden besteed aan het plaatsen van de bekisting en het bevestigen van de afschoring.
Door het geringe gewicht van vooral de verloren bekistingen zijn ook de voorzieningen sober van uitvoering. Voor het plaatsen zijn stelkransen op de betonvloer en klembanden ter plaatse van de bevestigingspunten van de afschoring nodig. Voor het storten is een aparte werksteiger nodig en moet aandacht worden besteed aan het aangeven van de gewenste hoogte bij het storten.
Vaak worden na het storten de kolommen nagericht, waardoor wordt geborgd dat ze in een juiste lijn staan. Doordat de verticale kolomwapening doorgaand is, maar de staven per verdieping worden gekoppeld, is de beschikbare tolerantie aan de bovenzijde van de kolom gering. De verbindingen tussen de verticale staven vragen ruimte. Daarom moet worden gecontroleerd of de kolommen binnen de toleranties van het opgaande werk blijven.
Bijzondere aspecten bij het bekisten, ontkisten en storten
Door het voorstorten van kolommen en het feit dat veel kolommen zich aan de rand van een vloer bevinden, moet veel aandacht worden besteed aan afstellen, afschoren, storten en ontkisten. Buiten de al genoemde aspecten die met efficiënt uitvoeren te maken hebben, gaat het met name om de specifieke veiligheidsaspecten bij het plaatsen en afstellen van de bekisting.
Veilig werken kan alleen als er een behoorlijke werksteiger om de kolom is aangebracht waarmee de kolombekisting goed bereikbaar is. Het fixeren van de plaatsing en de afschoring gebeurt op de betonvloer. Met trek- en drukvaste schoorstempels kan de verticaalstand geborgd worden. Van belang is daarbij dat er geen speling op de schroefdraad mag zijn om te grote toleranties in het betonwerk te voorkomen.
Bij hoge kolommen moeten aparte voorzieningen worden aangebracht om koppelingen veilig uit te voeren. Het gebruik van kooiladders is boven 2,50 m voorgeschreven.
Betonstorten gebeurt vanaf een aparte stortsteiger. De hoogte van de steiger moet zijn afgestemd op de lengte van de doorstekende wapeningsstaven. Voor het opentrekken van een kubel en voor trilapparatuur moet voldoende ruimte zijn.
Over het bekisten en ontkisten van kolommen is een aparte Arbo-publicatie beschikbaar.
1.5.18 Veilige kolombekisting
Algemeen Wandbekisting omvat naast vloerbekisting een groot deel van alle bekistingen. Vroeger werd het zeer traditioneel uitgevoerd en in het werk opgebouwd, maar sinds het gebruik van systeembekistingen is het vaak geprefabriceerd en als kraanelement in gebruik.
Het produceren van betonwanden bevindt zich vaak in de kritische lijn van de planning en is dan bepalend voor de bouwtijd van de ruwbouw van een betonconstructie.
Bovendien kost het be- en ontkisten van wandbekistingen veel manuren. Het heeft ertoe geleid dat vanaf de jaren zestig, waarin het gebruik van systeembekisting het aantal manuren drastisch reduceerde, veel aandacht wordt besteed aan het ontwikkelen van efficiënt inzetbare bekistingen. Vanuit de karakteristieke kenmerken van het type wandbekisting kan een keuze worden gemaakt uit de diverse typen en systemen. Karakteristieke kenmerken van een wandbekisting:
Duidelijk moge zijn dat de keuze en toepassing van een bepaald type wandbekisting van vele factoren afhankelijk is. Dit hoofdstuk pretendeert niet uitputtend te zijn, maar omschrijft per type bekisting een aantal kenmerken die bij de inzet van wandbekisting in overweging moeten worden genomen. De juiste keuze en de juiste voorbereiding leveren een essentiële bijdrage om tot een efficiënte uitvoering te komen.
Aan het eind van deze paragraaf wordt een opgave gedaan van de systemen die op dit moment beschikbaar zijn, overigens niet pretenderend volledig te zijn. Aangezien in de praktijk blijkt dat veel bedrijven toch over aanzienlijke hoeveelheden ‘historisch’ materieel beschikken, is een opgave zoals hier gedaan, zeker op zijn plaats en kan worden gebruikt.
Traditionele wandbekisting Traditioneel bestaat een wandbekisting uit een eenmalige, in het werk opgebouwde bekisting die is samengesteld uit een bekistingsplaat van deelhout, schotten of multiplex, ondersteund door baddinghout en voorzien van houten gordingen. Het baddinghout heeft een nominale maat van 6 x 16 cm² en is een standaardafmeting voor de Nederlandse bouw. Als centerpenmateriaal is constructief gezien zachtstaal al geschikt, maar toch wordt veelal hoogwaardig snelspanmateriaal gebruikt.
1.5.19 Traditionele wandbekisting
Projectwandbekisting
Zoals eerder gememoreerd, leidt het afstemmen van een bekisting op alle bijzondere kenmerken van een project vaak tot de meest efficiënte uitvoering. Door in feite alle overbodige systeemmogelijkheden uit te sluiten, ontstaat het meest passende systeem.
Het gevolg is een optimale lengte en opdeling van schotten, een optimale stijfheid waardoor er een minimale stelnoodzaak bestaat, de juiste afstemming op de hoogtevariaties in de wanden, op de stortmethode en op de plaatsing op steigers, en een goede afstemming tussen toegepast centerpenmateriaal, gordingen en eisen aan betonoppervlak.
Kortom, er is veel te zeggen voor projectbekisting. De wandbekisting kan zijn samengesteld uit een combinatie van systeemmateriaal en handelsprofielen. Uitwisseling van ervaringen met de uitvoering leidt vaak tot bijzondere oplossingen. Figuur 1.5.20 toont enkele voorbeelden van projectbekistingen, waarbij de repetitie van een wandbekisting invloed heeft op de materiaalkeuze.
De bekisting kan geheel zijn opgebouwd uit systeemmateriaal en krijgt dan de naam die bij het systeem past. Zijn de staanders van systeemmateriaal, dan kunnen de gordingen uit standaard stalen U-profielen worden gemaakt.
1.5.20a Projectbekistingen uit traditionele materialen en systeemmateriaal
1.5.20b Projectbekistingen uit traditionele materialen en systeemmateriaal
Het ontwerpen van dit soort bekistingen vergt veel deskundigheid en vraagt om intensieve communicatie met andere betrokkenen. Het is volledig afgestemd op de uitvoeringsmethode en moet dus in overeenstemming zijn met de details van het begin tot het einde van het betonwerk.
Het kan een belangrijke bijdrage aan kwaliteitsbeheersing leveren en is vaak maatgevend voor de bouwsnelheid. Het is te beschouwen als een schaakspel: een juiste zet levert gedurende het gehele spel voordelen, een verkeerde zet kan niet meer worden hersteld en levert tot het einde toe problemen op.
Schotlengten zullen volgen uit inzetschema’s van wandbekistingen, waarin alle inzet- en bijbehorende aansluitdetails zijn aangegeven. De stortvolgorde, de vaststelling van aantallen schotten en verschillende hoeveelheden in stelkist en sluitkist volgen uit de planning en routingschema’s. De dimensionering van dergelijke bekistingen is te vinden in hoofdstuk 3, waarbij juist de combinatie van systeem- en handelsmateriaal aandacht eist voor de statische waarden van de verschillende materialen.
1.5.21a Opgebouwde projectbekisting
1.5.21b Opgebouwde projectbekisting
Grootwandbekisting
Het woord grootwandbekisting houdt vooral verband met de transportwijze en de handling van bekistingsschotten. Veel projectbekistingen worden uitgevoerd als grootwandbekisting. Specifieke toepassingen zijn vooral te vinden in de woningbouw, waar wandlange schotten en een verhoudingsgewijs geringe hoogte (2,60 m) bijzondere eisen stellen aan stijfheid en het be- en ontkisten.
Er zijn systemen die vooral horizontale stijfheid geven (de systemen waarbij lange doorgaande liggers de beplating ondersteunen), er zijn systemen die vooral verticale stijfheid geven (systemen waarbij de beplating verticaal wordt ondersteund) en er zijn systemen die in beide richtingen stijfheid bezitten. Het heeft invloed op het noodzakelijke aantal hoogte-instellingen, schoorstempels en verbindingen tussen de schotten onderling. En het bepaalt de behoefte aan een hulpmiddel om de schotten gelijkmatig op te tillen (een evenaar).
1.5.22 Toepassing bij grootwandbekisting en krachtsverdeling in een evenaar
In alle gevallen zijn de kraancapaciteit, maar ook de verwachte wind (al of niet aan de kust, hoogte van het gebouw, impact bij kleine vloeroppervlakken) maatgevende factoren bij de bepaling van de lengte van kraanelementen. Omdat windverlet tot een behoorlijke verstoring van de bouwcyclus kan leiden, moeten via risicobeschouwingen afwegingen worden gemaakt om risico en kans af te stemmen op de optimaal gewenste lengte.
Paneelbekisting
Paneelbekistingen vormen, historisch gezien, de eerste ontwikkelingen van systeembekistingen. Al in de jaren 1950 waren stalen paneeltjes op de markt die met spiebouten aan elkaar konden worden gekoppeld en waarin voorzieningen waren getroffen om centerpennen door te voeren en een wand af te kunnen stellen. Met het ontwikkelen van grootwandbekistingen raakten ze enigszins uit de gratie. Productontwikkeling heeft er echter voor gezorgd dat de paneelbekisting in de verschillende beschikbare afmetingen bij veel toepassingen een volwaardige en goede oplossing kan zijn.
Hierbij kan onderscheid worden gemaakt tussen kleinpaneelsystemen, die bij vloeren en wanden worden gebruikt, veelal onderdeel van een totaal systeem vormen en met de hand omzetbaar zijn, en grootpaneelsystemen die op zichzelf staande bekistingen vormen die met een kraan worden verplaatst.
1.5.23 Voorbeeld van een grootpaneelsysteem
1.5.24 Toepassingsvoorbeeld van een kleinpaneelsysteem
Elk paneelsysteem heeft een eigen karakteristieke betonspeciedruk waarop is gedimensioneerd en heeft door afmetingen, toleranties en vervormingsgedrag een optimaal toepassingsgebied. Leveranciers geven naast afmetingen en toepassingsmogelijkheden de toelaatbare betonspeciedruk op. Deze opgave geeft slechts werkelijke informatie als ze vergezeld gaat van bijbehorende doorbuigingen.
Bedacht moet worden dat bij een maximale betonspeciedruk ook een bepaald type centerpen hoort. Soms is de opgegeven maximale betonspeciedruk gebaseerd op een 20 mm centerpen, terwijl in Nederland overwegend de 15 mm pen wordt toegepast. In dat geval moet de maximaal opneembare betonspeciedruk worden gemaximaliseerd.
In tegenstelling tot uit onderdelen samengestelde bekistingssystemen is de toelaatbare betonspeciedruk niet te beïnvloeden. Beplating, ondersteuning en centering zijn op elkaar afgestemd. Wel zijn sommige systemen meer geschikt voor eenmalige betonvormen dan andere. Ook zijn verschillen te vinden in de horizontale en verticale koppelingen van panelen.
De paneelbekistingen zijn zodanig ontwikkeld dat elke betonvorm kan worden gemaakt met daartoe beschikbare hulpstukken. Echter, elk systeem kent eigen hulpstukken die niet uitwisselbaar zijn. Vanuit het oogpunt van materieelbeheer moet hiermee rekening worden gehouden.
De kleinpaneelbekisting is vanwege zijn afmetingen het meest flexibel voor onregelmatig werk. Er is dus geen repetitie nodig om voor het gebruik te kiezen. De beide paneelsystemen geven veel afgetekende patroonnaden op het vrijkomende betonoppervlak. Ze zijn dus niet toepasbaar indien er in de projectspecificatie nadere eisen zijn gesteld aan het betonoppervlak.
De kleinpaneelsystemen bestaan uit een serie gestandaardiseerde panelen die hun toepassing vooral vinden in de seriematige productie van fundatiebalken en poeren. Gebruikelijke hoogtematen zijn 1500 mm en 1200 mm. De bijbehorende breedtekeuzemogelijkheden zijn: 300 mm, 450 mm, 600 mm, 750 mm, 900 mm. De zijkanten van de panelen zijn voorzien van gaten waarin verbindingspennen passen die worden gebruikt om panelen te koppelen en grotere kraaneenheden te maken. In de randconstructie zijn tevens gaten aanwezig waardoor de panelen kunnen worden gecenterd. Ook hier geldt dat er vele hulpstukken mogelijk c.q. nodig zijn. Het kan daarom belangrijk zijn of aanpassing met een traditionele bekisting gemakkelijk te realiseren is. De diverse systemen kennen daarin elk hun eigen oplossingen.
De grootpaneelsystemen kunnen bestaan uit een combinatie van zelfdragende elementen uit stalen of aluminium frames, voorzien van een multiplex of kunststof beplating. Ook zijn compleet stalen, wandhoge panelen mogelijk, die vooral in de gietbouw worden gebruikt. In alle gevallen worden deze paneelbekistingen met de kraan omgezet.
Hoogten zijn afgestemd op gangbare verdiepingshoogten en zijn maximaal 3,30 m, de breedten zijn zeer divers en variëren van 0,25 m tot 2,70 m. Deze bekistingen kunnen zowel per paneel worden be- en ontkist, alsook als grootwandelement worden uitgevoerd.
Koppelingen worden in systeem uitgevoerd; uitrichten van aaneengesloten panelen kan met een apart aangebrachte richtgording worden gerealiseerd. Bij alle systemen zijn hulpstukken voor werk- en stortsteigers, alsook voor afstelling beschikbaar. Onderscheid tussen de verschillende systemen is te vinden in de zwaarte van de frameprofielen (doorbuiging), de toleranties op de koppelingen (plaatselijke maatverschillen), de constructie van de koppelingen (zowel verticaal als horizontaal) en de manier waarop de contactbekisting in of op het frame is aangebracht (aftekening). Om te voldoen aan bijzondere eisen aan het betonoppervlak die in een projectspecificatie zijn opgenomen, moeten al deze aspecten worden beoordeeld.
Doordat grootpaneelbekistingen zowel rechte schotten alsook hoekstukken kennen en alle systemen met zeer innovatieve koppelingen zijn uitgevoerd, is het mogelijk zonder al te uitvoerige werkvoorbereiding met een dergelijke bekisting te starten. Voor hoeken worden hoekstukken gebruikt, voor uitvullingen passtukken. Hoeveelheid en uitvoering zijn eenvoudig aan te passen aan de situatie die zich op dat moment aandient. Omdat de leverancier de inzet van deze bekistingen zelf aangeeft, zal deze daarin alle mogelijkheden van een systeem uitnutten. Aanpassingen met traditionele materialen zullen door de leverancier zoveel mogelijk worden vermeden, terwijl dit voor de hand liggende oplossingen kunnen zijn.
Door het aantal handelingen (koppelen, centeren, afschoren, uitrichten) vergt deze vorm van bekisten ten opzichte van een stijve grootwandbekisting meer manuren. Het vrijwel ontbreken van samenstellingsuren bij grootpaneelbekisting kan daartegen opwegen. Een goede keuze is slechts mogelijk door een totaalkostenvergelijking te maken van alle kosten: materieelkosten (huur of afschrijving), montage- en demontagekosten, be- en ontkistingskosten en verbruikskosten.
1.5.25a Voorbeeld van koppelingsdetails
1.5.25b Voorbeeld van koppelingsdetails
1.5.25c Voorbeeld van koppelingsdetails
1.5.26a Voorbeelden van hoekoplossingen
1.5.26b Voorbeelden van hoekoplossingen
Kernbekisting
Door de bijzondere kenmerken van een bekisting voor liftkernen en trappenhuizen wordt de kernbekisting als speciale bekisting aangemerkt.
Kernen zijn vaak onderdeel van de kritische lijn in een planning en complex doordat verschillende disciplines bij elkaar komen. Bij deze bekisting worden verschillende benamingen gehanteerd. Zo wordt onderscheid gemaakt in stelkist en sluitkist, in binnenkist en buitenkist. Men kent hoekstukken, passtukken, ontkistingshoeken, hefvloeren, steljukken en stortbordessen. De binnenbekisting kan als complete kern worden verplaatst, de binnenbekisting en steigervloer kunnen als één geheel worden omgezet.
Er bestaan diverse basisvormen, waarvan de verschillen vooral de vorm van de binnenbekisting betreffen. Deze kan zijn uitgevoerd met losse schotten, met aangepaste, lossende hoekelementen of met vaste hoekelementen en vulstukken (figuur 1.5.30). Na het storten moet in alle gevallen de bekistingsconstructie worden versmald.
Hoekschotten kunnen, afhankelijk van de afmeting, als één geheel worden gesteld. Eenduidigheid in het gebruik van de spindels is belangrijk. Bij grote hoekschotten moet de situatie bij het ontkisten worden beoordeeld. Ingestorte voorzieningen kunnen het ontkisten sterk bemoeilijken.
1.997 Schematisering binnenbekisting kernen met voorbeelden van hoekoplossingen
De steigervloer in een kern kan op verschillende manieren worden uitgevoerd. Voor repeterend gebruik is een verplaatsbare hefvloer ontwikkeld. Deze is samengesteld uit enkele gekoppelde, dubbele staalprofielen, waaroverheen een houten vloer is aangebracht. De staalprofielen zijn aan de einden voorzien van kantelbare opleggingen, die steun vinden in vooraf gemaakte sparingen in de schachtwand (zie figuur 1.5.28). De binnenbekisting van de schacht wordt op deze hefvloer afgesteld. Het is soms mogelijk de binnenbekisting en de hefvloer samen in één hijsbeweging te verplaatsen naar de volgende verdieping.
1.5.28 Doorsnede hefvloer onder binnenbekisting
Eenzijdige wandbekisting
Daar waar slechts aan één zijde van een betonwand bekisting kan worden aangebracht, wordt deze uitgevoerd als eenzijdige bekisting zoals bij betonwanden tegen een damwandconstructie, betonwanden tegen bestaand werk, maar ook een randbekisting van grote betonpoeren of een klimbekisting voor stuwwanden.
Bij damwanden en bestaand betonwerk kan vaak gebruik worden gemaakt van aangelaste of ingeboorde centerpennen. Is dit niet mogelijk, dan is een aparte achterconstructie nodig. Hierbij moet rekening worden gehouden met de krachtwerking in de achterconstructie door de ontbondene van de horizontale betonspeciedruk. De vereiste constructie is dan ook groot, zwaar, moeilijk te verplaatsen en vervormt bovenin aanzienlijk. Hoeken zijn ook lastig te realiseren.
1.5.29a Verticale doorsnede randbekisting (met verticaal ontbondene)
1.5.29b Systeembekisting voor een eenzijdige wandbekisting
Ronde wandbekisting
Gebogen betonwanden komen voor bij rioolwaterzuiveringen, opslagtanks, brugpijlers en af en toe ook bij kernwanden in de utiliteitsbouw. Afhankelijk van de eisen aan het betonoppervlak kan worden gekozen voor bekistingssystemen die de toegestane tolerantie benaderen of die een zuiver gebogen oppervlak opleveren. Het betekent in principe een veelhoek, of een aaneenschakeling van zuivere segmenten. Systemen kunnen typische kenmerken hebben door de beplating en de ondersteuning ervan, waardoor de straal aan de randen van elementen niet zuiver is.
Er kan onderscheid worden gemaakt in bekistingen met een horizontale en met een verticale ondersteuning van de beplating. Voordeel van de horizontale ondersteuning is een zuivere boogvorm; nadeel is een moeilijk uitvoerbare elementnaad.
Voordeel van een verticale ondersteuning is de eenvoudig uit te voeren elementnaad, nadeel de kans op een afwijking van de zuivere boogvorm. In deze vorm zijn verschillende systemen mogelijk.
1.5.30 Horizontale doorsnede ronde bekisting met horizontale scheggen
1.5.31 Ronde bekisting met verticale staanders
Ronde wandbekistingen die niet zijn uitgevoerd in systeem, kunnen zodanig worden samengesteld dat de nadelen worden geëlimineerd. Het zijn vaak erg goed passende projectbekistingen (figuur 1.5.32), waarbij de benodigde manuren per inzet minimaal kunnen zijn. Uiteraard moet worden beoordeeld of in het project voldoende repetitie te realiseren valt om de hogere kosten van de bekisting te rechtvaardigen.
1.5.32 Projectbekisting
Verloren wandbekisting
In navolging van de toepassing van breedplaatvloeren bij vloerbekistingen zijn er ook ontwikkelingen geweest die tot een verloren wandbekisting hebben geleid. Een bekend systeem is het holle-wandsysteem, dat bestaat uit twee betonschillen die met wapeningskorven aan elkaar zijn verbonden (figuur 1.5.33) en zonder centering kunnen worden gestort. Dit systeem kent een goede toepassing in kelders, waar na het vlechten van de vloer de wandelementen op stelconussen worden aangebracht en vloer en wanden direct na elkaar kunnen worden gestort. De hoge kwaliteit van de wanden vermindert de kans op lekkage aanzienlijk. Wel zijn de kosten hoger dan die van betonwanden die met een normale bekisting zijn uitgevoerd, moet stekwapening worden aangepast en is een langere voorbereidings- en productietijd vereist.
1.5.33 Bekisting holle-wandsysteem
Steigerelementen als werksteiger onder de bekisting van eindwanden (Kopgevelsteigers)
Betonwanden die zich aan de rand van een vloer bevinden, moeten aan de buitenzijde kunnen worden geplaatst op een voldoende brede en veilige werksteiger. Deze werksteiger bestaat veelal uit stalen jukken die tot een element zijn samengesteld en met een ophangconstructie aan de gestorte betonvloer worden bevestigd. Het zijn de jukken die ook worden gebruikt bij klimbekisting.
De steigerelementen kunnen bestaan uit een enkele werkvloer of uit een werkvloer met daaronder een schrikvloer. In beide gevallen is de houten vloer met een geboute verbinding bevestigd op de stalen jukken en het geheel wordt als kraanelement omgezet.
Belangrijk is dat de plaatsing van de bekisting op de steigervloer op dezelfde hoogte is als op de betonvloer. Ook kan de steigervloer worden gebruikt om een werksteiger te hebben bij het storten van de betonvloer, maar dan moet worden gecontroleerd of de betonwanden waartegen het steigerelement is bevestigd en waarop de betonvloer wordt gestort, voldoende druksterkte heeft bereikt om het optredende moment en de dwarskracht uit de verankering van het element, op te nemen.
In tegenstelling tot de situatie bij klimbekisting, wordt de wandbekisting bij eindwanden horizontaal verplaatst en separaat van het steigerelement omgezet. Hierdoor is het enerzijds mogelijk systemen door elkaar te gebruiken, anderzijds wordt een extra kans op onveiligheid geïntroduceerd. Steigerelementen moeten aan hijsogen worden bevestigd alvorens te kunnen worden omgehangen en wandbekistingselementen moeten tijdelijk elders worden geplaatst.
Van belang is vooral dat de elementen standvast zijn en tegen opwaaien door windvlagen zijn verankerd. Overstekken die zich in hoeken altijd voordoen, moeten voldoende beveiligd zijn tegen de kans op domp. Ook is het van belang dat de ophangpunten zodanig zijn uitgevoerd dat de steigerelementen zonder al te veel geleiding met de kraan kunnen worden ingehangen en weggenomen.
1.5.34 Klimbekisting met hangsteiger en vangnetten
Veiligheidsaspecten bij wand- en kolombekistingen
De bouw staat helaas bekend als onveilig. Veel ongelukken gebeuren door onoplettendheid of gemakzucht. Veiligheid bij wandbekistingen gaat vooral over logische zaken en ‘open deuren’, maar wel aspecten die door hun veelzijdigheid in een aparte controlelijst moeten worden opgenomen.
Zodoende wordt het ontwerp van bekistingsconstructies voorzien van ‘ingebakken veiligheden’ en wordt er tijdens de uitvoering aandacht besteed aan onvoorziene situaties waardoor een bijna logische manier van veilig werken ontstaat.
Diverse veiligheidsaspecten op het gebied van persoonlijke veiligheid zijn al genoemd. Hier volgt een opsomming van aandachtspunten die in het ontwerp van de bekisting moeten zijn opgenomen en in de uitvoering moeten worden opgevolgd en gecontroleerd. Niet uitputtend, maar wel belangrijk.
1.5.35 Beveiligingen wandbekistingen met noodtrappen Algemeen De verscheidenheid in de uitvoering van betonvloeren is groot. Er bestaan al grote verschillen tussen woningbouw, utiliteits- en industriebouw. In de civiele bouw wordt gesproken over dekken en zijn overige vloeren vaak zo massief dat hier de bekisting ondergeschikt is aan de ondersteuningsconstructie. Dit wordt behandeld in hoofdstuk 4.
In de woningbouw kunnen laagbouw en hoogbouw worden onderscheiden. Door de specifieke vormgeving (altijd woningscheidende wanden) worden de volgende systemen toegepast:
De systemen voor woningbouw worden behandeld in hoofdstuk 4 (4.1).
In de utiliteitsbouw is sprake van vele soorten vloeren, elk met een eigen specifieke uitvoeringsmethode. Ontwikkelingen in betonvloeren zijn gevoed door de behoefte aan grote overspanningen, de combinatie van betonconstructie en bekistingstechniek en innovaties op vele gebieden. Om er enkele te noemen: de beheerste sterkteontwikkeling van beton, voorspansystemen, toepassing van geavanceerde prefab constructies, gewichtsbesparende voorzieningen in de betonvloer.
Daarnaast hebben bekistingssystemen heel wat ontwikkelingen meegemaakt vanwege wensen met betrekking tot vormgeving, op grond van arbeidstechnische verbeteringen, de behoefte aan flexibele systemen waarbij bekisting en ondersteuning een integraal geheel vormen, en de wensen om het ontkisten te bespoedigen en vloeren van tijdelijke ondersteuningen te voorzien. Het heeft geleid tot een scala aan mogelijkheden en onderscheid in traditionele vloerbekistingen, tafelbekistingen, valkopsystemen, breedplaatvloeren en cassettevloeren.
De keuze wordt door zoveel factoren beïnvloed dat deze moet zijn gebaseerd op een vergelijking van totale kosten. Hierbij wordt bepaald wat de systeemkeuze zal zijn, de hoeveelheid bekisting en ondersteuning en de inzetduur per type. Beoordeeld worden de gewenste bouwsnelheid, routing en cyclustijd, haalbare repetitie en noodzakelijke aanpassingen, afstemming tussen wanden en vloeren, maar ook doorstempelplan, krimpstroken, in te storten voorzieningen en wapeningssysteem.
Er zijn dus veel invloedsfactoren waarmee rekening moet worden gehouden en de zekerheid dat elke keuze discutabel kan zijn als aan één van de factoren een bijzondere prioriteit wordt toegekend. Een transparante motivatie omtrent het te kiezen systeem betekent dan ook de zekerheid dat de betrokkenen in de uitvoering de uitgangspunten kunnen herkennen en hun aanpak erop kunnen baseren.
Traditionele vloerbekisting
De opbouw van een traditionele vloerbekisting bestaat uit bekistingsmultiplex als contactbekisting, kinderbalken uit geschaafd baddinghout als directe ondersteuning en onderslagen, geplaatst op schroefstempels of systeemsteiger, als ondersteuning.
1.5.41 Principedoorsnede vloerbekisting
Kinderbalken zullen veelal een hart-op-hartmaat hebben die is afgestemd op de plaatlengte en waarbij de doorkoppeling wordt uitgevoerd door de kinderbalken verspringend langs elkaar te leggen.
Onderslagen bestaan uit enkele of dubbele baddingen. De wijze waarop de stempels onder de onderslag worden geplaatst, is van belang. De belasting moet centrisch op de stempels worden overgedragen. De las- of stuikverbinding kan bij een dubbele onderslagbalk in het hart van de gaffel liggen. Bij een enkele onderslag staat een extra schroefstempel onder het midden van een overlap. Veel aandacht moet worden besteed aan stabiliteit. Door het ontbreken van ‘ingebakken’ stabiliteitsvoorzieningen is de kans op het ontbreken van de juiste schoorverbanden erg groot.
Schroefstempels
Het gebruik van schroefstempels is universeel. Ze worden veelal als los onderdeel gebruikt, maar kunnen ook onderdeel vormen van een opgebouwd vakwerk. De verschillen tussen de diverse types bestaan enerzijds uit de lengte en belastbaarheid, anderzijds uit de wijze waarop de hoogte-instelling is uitgevoerd. Het verschil in lengte en belastbaarheid manifesteert zich in een optimaal toepassingsgebied en gewicht van een stempel. Bij het verschil in hoogte-instelling is sprake van een stempel uitgevoerd met binnendraad en een andere met een uitwendige schroefdraad. Uit overwegingen van onderhoud zijn stempels meestal vervaardigd van verzinkte stalen buizen. Om stempels op hoogte te stellen zijn ze voorzien van een grofinstelling en een fijninstelling.
Voor de grofinstelling is de binnenbuis voorzien van gaten op een onderlinge afstand van 100 of 150 mm. De grove hoogte-instelling gebeurt door de binnenbuis uit te schuiven en de draagpen ter hoogte van de bovenkant van de schroefmof door een gat in de binnenbuis te steken. De fijninstelling kan bestaan uit een mof met inwendige draad of een stelring met uitwendige draad. Beide hebben karakteristieke gebruiksvoordelen en nadelen. De binnenbuis wordt met de fijninstelling precies op de gewenste hoogte gedraaid. Dezelfde schroefmof dient ook om bij het ontkisten de bekisting geleidelijk te laten zakken.
Bij het gebruik van schroefstempels komen in de praktijk veel uitvoeringsfouten voor. Daarom volgt hier een aantal waarschuwingen en richtlijnen.
1.5.42 Principe schoorverband en stempelstatief, schoorverband aan stempels
Tafelbekisting
De behoefte aan grotere bekistingseenheden die met de kraan kunnen worden omgezet, hebben geleid tot de ontwikkeling van vele soorten tafelbekisting. Evenals bij wandbekisting worden de afmetingen van tafels mede bepaald door betonafmetingen, routing en bouwsnelheid, gewenste repetitie, kraancapaciteit en windgevoeligheid bij transport.
De ontwikkeling van flexibele en slim uitgevoerde valkopsystemen hebben de toepassing van tafelbekisting verminderd. Een tweede reden is dat de kleinschaligheid van het bouwen tot geringe repetitiemogelijkheden bij tafels heeft geleid, waarmee de arbeidstechnische voordelen teniet werden gedaan.
Toch past dit onderdeel in het handboek, omdat er nog steeds veel efficiencyvoordeel valt te behalen als men met grote elementen werkt. Wel is de uiteenzetting beperkt tot principes en moet men voor productinformatie over systemen contact zoeken met bekistingsleveranciers.
Een tafelbekisting is te onderscheiden in tafels met een ondersteuning en roltafels. Een tafel met een ondersteuning bestaat uit een ondersteuningsdeel (het onderstel) en een bekistingsdeel (het tafelblad). Het ondersteuningsdeel bestaat uit schroefstempels, een schoorverband en onderslagen.
De schroefstempels zijn vaak robuust van uitvoering, omdat door het geregeld transporteren gemakkelijk beschadigingen kunnen ontstaan. Bij het gebruik van speciale stempels kunnen aangelaste platen zorgen voor het horizontale schoorverband. Er zijn systemen die een complete tafelondersteuning aanbieden.
Het tafelblad bestaat uit kinderbalken die ofwel uit baddinghout ofwel uit systeemdragers bestaan, en uit een beplating van betonmultiplex. Om horizontale ruimte voor het ontkisten te hebben, worden regelmatig passtroken toegepast als aansluiting tussen twee tafels. Deze stroken kunnen dan tevens worden gebruikt om een doorstempeling aan te brengen.
1.5.43 Toepassing van een tafelbekisting
De roltafel is een bijzondere uitvoering van een tafelbekisting, speciaal ontwikkeld voor de woningbouw. De geringe belastbaarheid van de onderliggende vloer maakte het noodzakelijk te zoeken naar een oplossing waarbij de belasting op de wanden werd overgebracht. De tafels bestaan uit een tafelblad, opgebouwd uit beplating, systeemkinderbalken en langs de rand onderslagen waarmee met de tafel kan worden gerold. De ondersteuning bestaat uit rollen die aan de betonwand zijn aangebracht en al of niet extra schoorstempels die een deel van de belasting kunnen opnemen.
Het transport van tafels kan op verschillende manieren plaatshebben. Er zijn drie ontkistingsmethoden om de tafel onder de vloer vandaan te halen en te transporteren, namelijk met:
Met een tafelhaak is veilig en beheerst ontkisten mogelijk, maar het gewicht van de tafelhaak gaat ten koste van het gewicht dat voor de tafel beschikbaar is.
Een tafelhaak is een vakwerkconstructie die onder het tafelblad wordt geschoven. De haak is zo ontworpen en afgesteld dat hij met en zonder tafel horizontaal hangt. Bij gebruik van een tafelhaak zijn geen voorzieningen nodig voor het uitrijden van de tafelbekisting. Soms moet de kantleuning plaatselijk worden verwijderd om de haak te kunnen inschuiven. Door het gewicht van de tafelhaak kan een zwaardere kraan nodig zijn.
1.5.44 Ontkisten met een tafelhaak
Een viersprong is een hulpmiddel voor het hijsen, bestaande uit vier hijskabels die in één punt samenkomen. Het is de eenvoudigste, maar minst veilige methode. Er zijn voorzieningen nodig om dit veilig te kunnen doen. Er zijn vier hijspunten aan de tafel die tijdens het ontkisten moeten worden aangebracht. Het plaatsen van de tafel op een gestorte vloer is geen probleem, maar om de tafels te verwijderen moeten deze eerst onder de gestorte vloer worden uitgereden om de kabels te bevestigen. En voor het uitrijden is op de onderliggende verdieping een uitrijdsteiger nodig. Dit uitrijdsteiger kan ook worden gebruikt voor het naar buiten en binnen brengen van ander materiaal.
Als een evenwichtstakel of compensatiecilinder wordt gebruikt, is er geen uitrijdsteiger nodig. Het is een hijshulpmiddel dat wordt gebruikt om de aangebrachte stroppen te kunnen verlengen of verkorten en daarmee de tafel horizontaal te houden als het aangrijpingspunt wordt verplaatst. De voorste stroppen van de evenwichtstakel worden bevestigd aan de tafelbekisting die daartoe een eindje is uitgereden. Vervolgens rijdt de steiger verder naar buiten, totdat de volgende stroppen voorbij het zwaartepunt van de tafel kunnen worden aangeslagen. De eerste stroppen worden verlengd, zodat de kraanhaak recht boven het zwaartepunt van de tafel hangt. Daarna kan de tafel in zijn geheel naar buiten. Voor het verrijden van de tafelbekisting kan gebruik worden gemaakt van een rolwagen.
1.5.45 Ontkistingsmethode met een evenwichtstakel
Valkopsystemen
Een van de ontwikkelingen die de manier van bouwen sterk hebben beïnvloed, is de introductie van een bijzonder type vloerbekisting, namelijk de valkopbekisting. Genoemd naar de werking van de kop van de schroefstempel onder de bekisting.
De bekisting wordt met de hand omgezet en is opgebouwd uit stempels, dragende en verdelende liggers en een contactbekisting uit beplating of kleine bekistingspanelen.
De liggers rusten op een kraag rondom de kop van de stempel. Deze kraag kan door het wegslaan van een wig omlaag vallen, waardoor de bekisting vrij komt zonder dat de stempels hun dragende functie verliezen. Het principe van de werking is aangegeven in figuur 1.5.46a.
1.5.46a Samenstelling valkopsysteem
1.5.46b Valkopsysteem in bekiste en ontkiste situatie
Doordat de contactbekisting bij het ontkisten vrijkomt, maar de stempels blijven staan, blijft de dragende functie intact en kan een groot deel van het materieel worden verwijderd zonder afbreuk te doen aan de vereiste ontkistingstijden volgens de voorschriften. Wel moet het gehele systeem van blijvende ondersteuning worden afgestemd met de constructeur van de betonconstructies. De verschillende leveranciers hebben verschillende mechanismen ontwikkeld om de valkop na het verharden van het beton snel te ontgrendelen. Ook heeft het met de hand be- en ontkisten geleid tot verschillende aluminiumsystemen.
Er zijn verschillende groepen valkopsystemen te onderscheiden, te weten:
Qua toepassing kennen de drie groepen verschillende ‘optimale’ toepassingsgebieden. In het algemeen is de inzet van valkopsystemen al rendabel bij geringe repetitie. Zeker als het uitvoerende bedrijf dit soort materieel beschikbaar heeft en de uitvoering gewend is met valkopsystemen te werken.
Als de bekisting slechts een- of tweemaal wordt gebruikt, zijn paneelsystemen aan te bevelen boven die van losse platen betonmultiplex. De afschrijving van het plaatmateriaal zou dan erg sterk drukken op de totale bekistingskosten.
Bij een inzet van twee tot tien maal zijn valkopsystemen voorzien van losse multiplexplaten interessant; als ondersteuning kan worden gekozen voor een steigersysteem of gekoppelde stempels. Wordt de inzet hoger, dan komt een tafelbekisting weer in beeld.
In alle gevallen zijn de vormgeving van de betonconstructie (randbalken, kolomverzwaringen, verzwaarde vloerstroken), de gewenste bouwsnelheid (bepalend voor de hoeveelheid bekisting die ingezet is), laag- of hoogbouw en eventuele esthetische eisen aan het betonoppervlak, van grote invloed op het toe te passen systeem.
Enkele kenmerken van groep a (losse stempels en een contactbekisting uit kleine panelen):
1.5.47 Valkopsystemen in groep a
Kenmerken van groep b (steigermaterieel voorzien van hoofd- en verdeelliggers en een contactbekisting uit beplating) zijn:
1.5.48 Valkopsystemen in groep b
Kenmerken van groep c (systeemstempels voorzien van hoofd- en verdeelliggers en een contactbekisting uit beplating) zijn:
1.5.49 Valkopsystemen in groep c
Bekisting voor bijzondere betonvloeren
Om een betonconstructie zoveel mogelijk te optimaliseren, zijn in de loop van de tijd systemen ontwikkeld die daaraan tegemoet komen. Een van ouds bekende vorm is die van de cassettevloeren, maar ontwikkelingen op het gebied van voor- en naspanning, staalplaatbetonvloeren, maar ook op het gebied van gewichtsbesparingen zoals de bollenplaatvloer, hebben tot optimalisering geleid.
Behandeling van deze systemen valt buiten de scope van dit hoofdstuk, maar een bespreking van de systemen die de keuze van de bekisting beïnvloeden, hoort wel in dit hoofdstuk thuis.
Cassettevloeren
Cassettevloeren bestaan uit dunne vloerplaten op een raster van balken. In Nederland zijn ze nooit massaal toegepast, maar in het buitenland veel. Doordat de vormgeving volledig wordt bepaald door de vorm van de cassettes, moet het ontwerp van dergelijke vloeren in nauw overleg tussen beton- en bekistingsconstructeur worden bepaald
.De kunststof cassettes bestaan uit rechthoekige of vierkante troggen met taps toelopende zijkanten, waardoor het ontkisten gemakkelijk gaat. De cassettes worden op een onderliggend steigersysteem geplaatst en vormen daarmee één geheel.
1.5.50 Cassettebekisting
Vloeren met gewichtsbesparende holle ruimten
Door holle ruimte te creëren met tempex, kartonnen buizen of kunststof bollen, ontstaat een constructie die zijn draagkracht behoudt, maar minder gewicht heeft dan een massieve vloer. De betonconstructeur bepaalt welk systeem kan worden toegepast, de bekistingsconstructeur beoordeelt de consequenties en stemt het bekistingssysteem daarop af.
Een bijzonder vorm is de bollenplaatvloer die bestaat uit fabrieksmatig samengestelde wapeningskorven met constructieve onder- en bovenwapening, waartussen kunststofbollen zijn ingeklemd. Het geheel kan worden voorzien van een prefab-betonbodem die als verloren bekisting functioneert. Modulaire maatvoering van de bollenplaatvloer en het bekistingssysteem moeten op elkaar zijn afgestemd.
1.5.51 Bollenplaatvloer (systeem BubbleDeck)
Vloeren die worden voor- of nagespannen
De constructie van dergelijke vloeren wordt behandeld in hoofdstuk 7, de afstemming op bekistingen valt onder dit hoofdstuk.
Van belang is vooral de ruimte die nodig is om voor-, c.q. naspanning aan te brengen, wat resulteert in eisen aan de werksteiger. Daarnaast is het van belang de juiste ontkistingstijden te kennen en daar de inzet van de bekisting op af te stemmen. De verschillende systemen kennen elk hun eigen bijzondere kenmerken. De leverancier geeft dit op.
Doorstempelen vs herstempelen
Als een gebouw meer verdiepingen heeft, zal het in bijna alle gevallen onmogelijk zijn dat de onderliggende vloer de belasting uit de te storten bovenliggende vloer draagt. Het gewicht van de te storten vloer, vermeerderd met de nuttige stortbelasting en het eigen gewicht van de bekisting, is vaak meer dan de belastbaarheid van de ondervloer. De belastbaarheid in de bouwfase bedraagt de berekende gebruiksbelasting, vermeerderd met de belasting ten gevolge van de afwerkvloer en de lijnlasten van de eventuele binnenwanden.
Daardoor zal de belasting over een of meer verdiepingen moeten worden verdeeld. Vandaar de term ‘doorstempeling’ (figuur 1.5.52). De stempels die daarvoor worden gebruikt, moeten zodanig worden geplaatst dat de onderliggende vloer op de juiste wijze wordt belast. De hoofdconstructeur van het project zal deze doorstempeling/herstempeling moeten goedkeuren.
Om de hoeveelheid doorstempeling te bepalen moet worden vastgesteld in hoeveel gedeelten de belasting aan onderliggende vloeren wordt overgedragen (figuur 1.5.53).
1.5.52 Principeschema doorstempeling
1.5.53 Schema’s doorstempeling
De doorstempeling bestaat vaak uit stempels die onderdeel van de bekisting hebben gevormd. Hiermee is tevens een van de meest voorkomende fouten bij doorstempeling geïntroduceerd, namelijk het laten staan van de stempels zonder dat ze los- en weer vastgedraaid zijn. Als namelijk de vloer die als ondersteuning dient, niet zelfdragend is geworden, blijft het gewicht van deze vloer op de onderliggende vloer rusten. Het wordt een opstapeling van vloeren. Het totale gewicht op de onderste vloer is dan zo groot, dat de stempels zullen bezwijken. Het betekent dan wel dat automatisch vloeren zelfdragend zijn geworden, maar er ontstaat een oncontroleerbaar proces dat tot calamiteit in de gehele betonconstructie kan leiden.
1.5.54 Schematisering effect doorbuiging vloeren en een overbelaste stempel
Het is niet altijd nodig om alle stempels te laten staan. Wel moeten ze verticaal gezien recht onder elkaar staan. Wanneer dit niet het geval is, ontstaan ontoelaatbare krachten op de tussenliggende vloeren. De hoofdconstructeur moet aangeven hoeveel ondersteuning een vloer in een bepaalde fase nodig heeft.
1.5.55 Ondersteuning vloer
De snelheid van bouwen en de systemen die daarbij worden gebruikt, hebben ervoor gezorgd dat ‘kruip’ van de betonvloer een fenomeen is waarmee rekening moet worden gehouden. Ook al heeft beton zijn vereiste druksterkte, toch hebben er onder belasting nog langzaam optredende vervormingen plaats. Dit wordt ‘kruip’ genoemd en als vuistregel wordt aangehouden dat dit verschijnsel gedurende zes weken na het storten op kan treden.
Kruipstempels kunnen worden gecombineerd met door- of herstelstempels en zijn de laatste stempels die uiteindelijk worden verwijderd
Veiligheidaspecten bij vloer- en balkbekistingen
Buiten de bijzondere veiligheidsaspecten die al bij de onderdelen zijn genoemd, kan een opsomming worden gegeven van aandachtspunten die in het ontwerp van de bekisting moeten zijn opgenomen en in de uitvoering moeten worden opgevolgd:
Stabiliteit
Het ontbreken van voldoende stabiliteit is een van de belangrijkste oorzaken van calamiteiten bij het storten van betonvloeren of dekken.
Doordat de gehele hulpconstructie uit losse onderdelen bestaat en vaak niet is opgesloten, moeten voorzieningen worden getroffen om de stabiliteit te waarborgen. Daarbij moet er een vormvast raamwerk aanwezig zijn op het moment waarop het beton wordt gestort. Door de belasting van het gestorte gedeelte ontstaat druk op de staanders, die door de wrijving met de ondergrond als vast punt gaan fungeren en daardoor belasting kunnen opnemen.
Wordt op de verkeerde plaats gestart met storten, dan kan het gehele vormvaste raamwerk zich horizontaal verplaatsen met alle gevolgen van dien. Zelfs bij verankerde verbindingen moet worden gecontroleerd of er eisen moeten worden gesteld aan de volgorde van betonstorten. Helaas heeft het nalaten hiervan in het verleden meermaals tot dodelijke ongelukken geleid.
Versie: 2015
Als contactbekisting wordt de beplating bedoeld die in direct contact komt met de betonspecie die naderhand het betonoppervlak vormt. Contactbekistingen kunnen bestaan uit de volgende materialen:
Bij de keuze voor een bepaalde contactbekisting zijn in eerste instantie de eisen aan het betonoppervlak bepalend. Maar er zijn meer aspecten die een keuze beïnvloeden. Op basis van de te storten onderdelen zijn de volgende factoren van invloed:
Bij alle genoemde factoren is het van belang van de juiste materiaaleigenschappen uit te gaan onder condities die overeenkomen met bouwplaatsomstandigheden. Ook al wordt aan productnormen voldaan, toch zal moeten worden beoordeeld of de bouwplaatsomstandigheden, zoals felle zon, vrieskou of vochtigheidsgraad, invloed hebben op de karakteristieke eigenschappen waarmee gerekend wordt en die tot het vervormingsgedrag leiden. Vooral vochtigheidsgraad en vermoeiing zijn aspecten om rekening mee te houden.
Voor algemene materiaaleigenschappen wordt verwezen naar de vele normen die NEN daarover uitgeeft.
Er zijn vele bekistingsplaten in de handel. Het is de kunst juist die plaat te vinden die aan alle bovengenoemde eisen en randvoorwaarden voldoet en ook in het budget past. Een plaat die wel in het budget past maar niet aan de eisen voldoet, kan achteraf heel veel geld kosten.
Contactbekisting uit betonmultiplex
Betonmultiplex is een van de meest toegepaste plaatmaterialen voor de contactbekisting van een bekistingsconstructie. Juist doordat het bepalend is voor de oppervlaktekwaliteit van betonwerk, zijn er vele onderzoeken verricht om de kwaliteitsaspecten te omschrijven die van belang zijn voor de toepassing als bekistingsmateriaal. De diversiteit in kwaliteiten is groot en de vaststelling is moeilijk. Het gegeven dat hout als natuurproduct onderhevig is aan ruime toleranties, gevoelig is voor extreme warmte, extreme kou of vochtigheid en de productie in heel de wereld plaatsheeft, maakt dat wij slechts achteraf kunnen controleren. Van invloed is daarbij tevens dat de keuze van beplating meer op basis van prijs dan van kwaliteit geschiedt.
Aangezien de gekozen beplating in belangrijke mate maatgevend is voor de kwaliteit van het betonoppervlak, zou keuze op basis van kwaliteitsaspecten moeten plaatshebben. Maar omdat het gedrag van een beplating van vele factoren afhankelijk is, volgt onderstaand een overzicht van keuzeaspecten en kenmerken van betonmultiplex, toegepast als bekistingsmateriaal.
Keuzeaspecten
Gegevens om tot een juiste keuze van een betonmultiplex te komen (zie ook onder materialen):
De beplating is een essentieel onderdeel van het ‘gereedschap’ van de uitvoerder. Daarom zouden criteria die door de uitvoering worden gesteld, doorslaggevend voor de keuze moeten zijn. Met relatief ‘slecht’ materiaal is het moeilijk kwaliteit af te leveren. Met materiaal dat verkeerd wordt behandeld of toegepast, kan nauwelijks de vereiste kwaliteit worden bereikt.
Het gedrag van beplating
Betonmultiplex bestaat altijd uit een oneven aantal fineerlagen. De aanduiding van een plaat begint met de gebruikte houtsoort, de kwaliteitsklasse van de beste zijde van de plaat en de lengte- en breedteafmetingen. Als afmetingen wordt eerst de lengtemaat genoemd. Dit is de maat evenwijdig aan de vezelrichting van de buitenste fineerlagen.
Het is van belang dat de ondersteuning van de beplating loodrecht op deze vezelrichting loopt. De plaat vertoont dan het geringste vervormingsgedrag, enerzijds doordat de E-modulus het hoogst is, anderzijds doordat op deze manier de plaat het minst last van vermoeiing heeft en het minst gevoelig is voor afname van sterkte-eigenschappen door vocht. Vermoeiing is een van de belangrijkste veroorzakers van afwijkend vervormingsgedrag en ontstaat door langdurige belasting, frequent belasten (bijvoorbeeld elke dag storten) en een hoge vochtigheidsgraad.
Ontwerpers van bekistingen moeten zich rekenschap geven van het feit dat meestal mechanische waarden worden opgegeven die bij laboratoriumomstandigheden zijn verkregen en dus bij circa 5% vochtigheid.
Aanbrengen beplating
Platen betonmultiplex worden in wandbekistingen bevestigd, maar bij vloerbekistingen vaak los-vast op de bekistingsdragers aangebracht.
Vooral bij wandbekisting moet rekening worden gehouden met diktetoleranties (geen plustolerantie naast een mintolerantie). Bij vloeren wordt rekening gehouden met afwijkingen van haaksheid. Hierop wordt geselecteerd tijdens het aanbrengen.
Aangezien de belasting bij wandbekisting vele malen groter is dan bij vloerbekisting, is de ondersteuningsrichting van belang en het verschil in vervorming tussen eindveld en tussenveld.
1.6.1a Vezelrichting buitenste fineerlaag versus ondersteuningsrichting
1.6.1b Multiplexplaat op bekistingsdragers
Gebruiksaanbevelingen
Om tot een goed resultaat te komen is niet alleen de keuze van belang, maar ook de behandeling.
Enkele aanbevelingen:
Versie: 2015
Algemeen
Om de betonspeciedruk te kunnen opnemen worden verticale bekistingsschotten met elkaar verbonden door middel van centerpennen. Er zijn vele uitvoeringen mogelijk, maar de keuze wordt bepaald door het type bekisting, de belasting op de centerpennen en de betontechnische eisen die aan de verbinding worden gesteld.
Doordat de verbinding bij elke inzet arbeidstijd vergt, zijn er ingenieuze systemen ontstaan, elk met specifieke kenmerken voor de verschillende inzetsituaties. In figuur 1.7.1 zijn de principes van de verschillende oplossingen aangegeven.
1.7.1 Overzicht centerpenconstructies
De toepassing van hoogwaardig materiaal heeft geleid tot drie verschillende staafuitvoeringen.
Qua toepassing kunnen centerpenconstructies als volgt worden onderscheiden.
Centerpenconstructies met terugwinbare staven
Om centerpennen na het storten te kunnen verwijderen, worden buisvormige afstandhouders toegepast die in het beton achterblijven. Uitzondering zijn de conische afstandhouders van pvc die in de gietbouw worden gebruikt en ook terugwinbaar zijn. Afstandhouders kunnen zijn gemaakt van pvc, beton of staal. De meeste afstandhouders zijn voorzien van eenvoudige pvc-conussen die na het ontkisten worden verwijderd en een goede afwerking van het betonwerk mogelijk maken. De afdichting van stalen en betonnen afstandhouders kan zodanig worden uitgevoerd dat sprake is van een waterdichte oplossing, geschikt voor een door de lleverancier opgegeven waterdruk.